新築工事事例
2024/02/16
【42坪・豪雪地帯仕様】周辺に民家のない田舎ならでは!片流れ屋根で雪下ろし無用
長野市、須坂市、北信地域で自由設計の注文住宅を建てるなら
木を活かす大工の技術×工務店×設計事務所
豊木工舎~とよきこうしゃ~へご相談ください!!
\雪と黒姫山・妙高山を思わせる一際目立つ外観カラー。/

SPEC
| 所在地 | 上水内郡信濃町 |
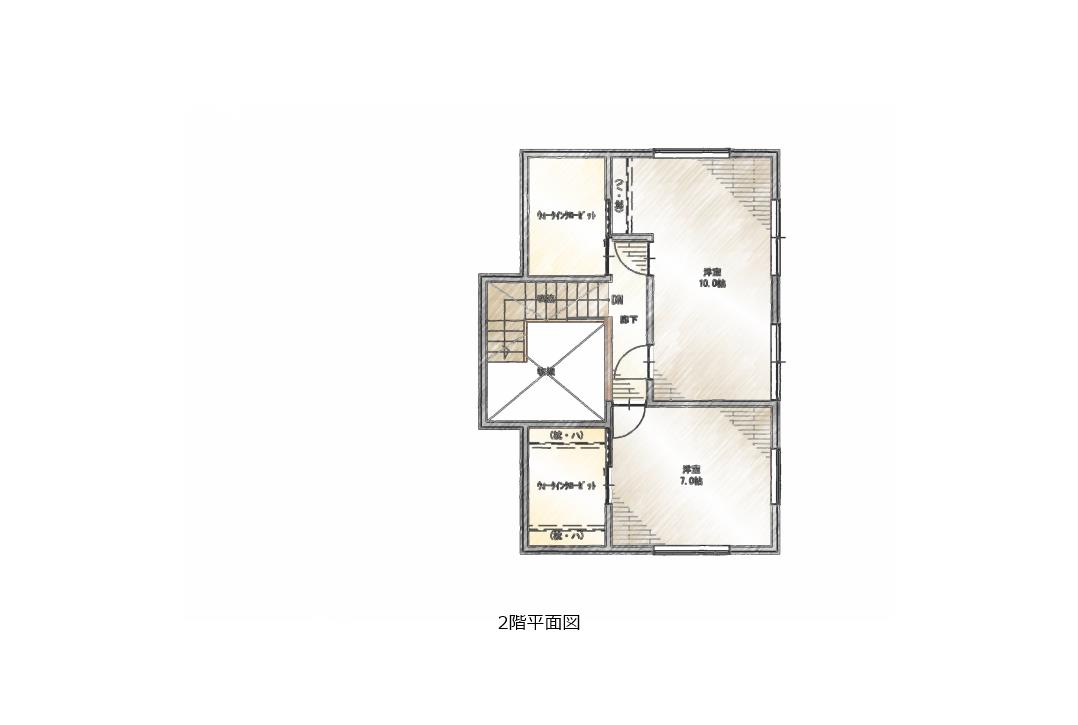
| 床面積 | 1F:98.12㎡(うち16.14㎡は倉庫) 2F:43.88㎡ 合計:142.00㎡(42.95坪) |
| 間取り | LDK16.7帖・主寝室6帖・和室4.5畳・洋室10帖・洋室7.5帖 |
| 価格帯(税込) | □2,501~3,000万円 ■3,001~3,500万円 □3,501~4,000万円 □4,001~4,500万円 |
長野県でも屈指の豪雪地帯!冬の生活を重視して設計しました
- 積雪対策として通常40㎝の基礎を地面から90㎝に。
- 同じく積雪対策で掃き出し窓はなし。
- さらに積雪対策で屋根は片流れで自然に雪が落ちるように斜度をつけてます。※雪が落ちる方向に家や道がないため実現
- 積雪で開かないことがないように玄関ポーチは奥に引っ込んでいます。
- 室温変化を極力なくすため効率的に換気ができる熱交換式の1種換気を採用。
※ダクト式ではなく器具本体で熱交換ができるタイプ - バルコニーだと冬使えないのでインナーバルコニーで全天候対応。
- スマートハウス仕様のため外出先からエアコンや玄関キーの操作ができます!
豊木工舎の職人が造作したものたち…
- シューズインクローゼットはご希望の容量で造作することが標準仕様になってます。長さのあるパイプハンガーは自分のコートだけでなく来客のコートも掛けられます。
- 造作洗面台をご希望される方が増えています。こちらは2人で並べる90㎝幅。鏡はスペースいっぱいの大きさで。
- トイレにニッチを作ってペーパーホルダーを収めてみました。図面はインターンの学生が描いてくれた思い出のニッチです。
- お仏壇スペースは収納戸付き。開いたときに戸が邪魔にならないよう側面に沿って収納できるようになってます。
- カップボードはサービス。完成見学会にお越しいただいき成約いただいた特典です。棚数にもよりますがこのサイズで約20万円です。
- TOTOザ・クラッソに合わせた造作カウンター。可動式なので棚を外せばダイニングカウンターにもなります。
Gallery
家づくりを考えている、話を聞きたいなど、お気軽にお問い合わせください。











